Perceel bouwgrond met uniek uitzicht

Verkocht Wuustwezel Tereik 29 lot4b
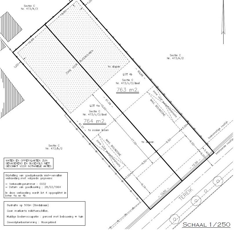
Deze unieke bouwgrond (Lot 4b) is welgelegen in een landelijke woonomgeving. De gunstige ligging maakt het perceel alleen maar aantrekkelijker met in de nabijheid het handelscentrum Braken en ook op een steenworp de basisschool leent zich perfect voor een kindvriendelijke woonomgeving. De diverse uitvalswegen richting Zundert en de ontsluiting naar Loenhout maakt de locatie vlot bereikbaar met de wagen. Er zijn ruime richtlijnen voor de bebouwingsmogelijkheden, zijnde een bouwbreedte van maximum 9,50m, een bouwdiepte van maximum 17m voor het gelijkvloers, een zone voor autostaanplaats en een zone voor bijgebouwen. De bouwhoogte van de kroonlijst straatzijde bedraagt 6,50m. Meer gedetailleerde voorschriften beschikbaar op kantoor. Bijzonderheden: het perceel wordt bouwrijp afgeleverd, waardoor de woning wordt afgebroken door de verkoper. Er rust geen bouwverplichting op het perceel.